CONTACT
Maison T5 174M² - Terrain 327m²
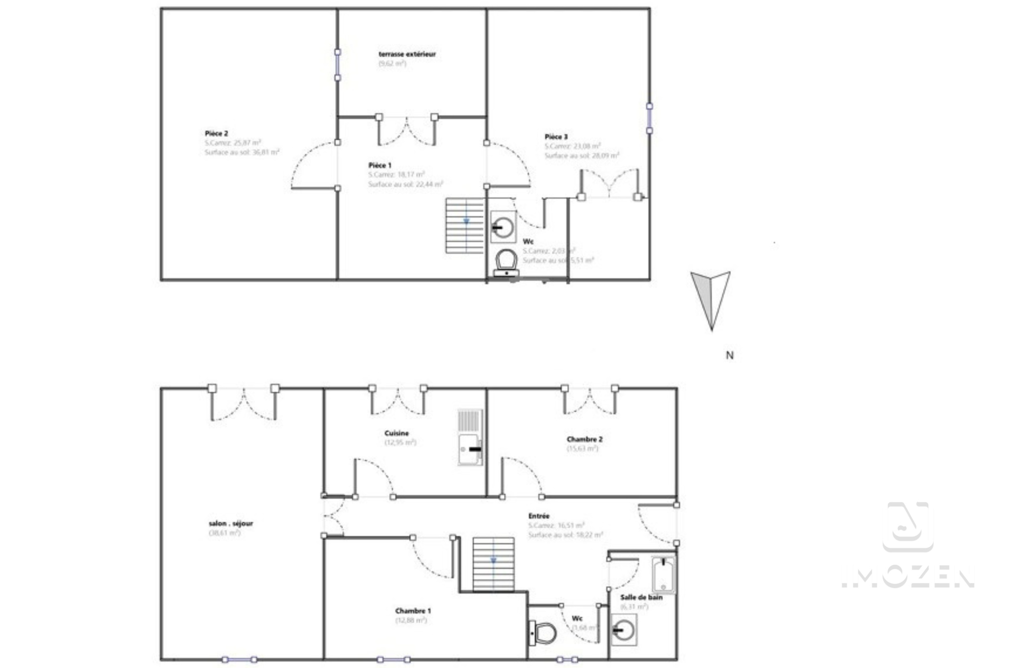
Maison 174 m² - 5 Pièces
Prix : 249 000 €
Référence : ENVMA190001314
Numéro de négociateur : 0677606399
Description de l'offre
BRIGNOLES -Maison de ville de caractère avec grande terrasse, jardin et stationnementsIdéalement située en plein centre-ville de Brignoles. Cette maison de ville des années 60 offre de beaux volumes, une luminosité remarquable et un cadre de vie pratique, à proximité immédiate des commodités. Développant environ 175 m² habitables (199m² surface sol), la maison se compose de 5 pièces, dont 4 chambres et un bureau, parfaitement adaptées à une vie de famille. Le salon séjour spacieux et lumineux, associé à la cuisine indépendante, bénéficie de larges ouvertures par portes-fenêtres, offrant une circulation fluide et naturelle vers l’extérieur. À l’extérieur, vous profiterez d’une très grande terrasse, véritable prolongement des espaces de vie, ainsi que l’une des chambres. Sous cette terrasse se trouvent deux caves, idéales pour le rangement. La maison est implantée sur un terrain plat, clos et arboré d’environ 387 m² mais utile environ 140m². Côté stationnement, une allée privative permet de garer facilement deux véhicules à l'intérieur de la propriété, avec un portillon d’accès. Un garage complète l’ensemble, davantage adapté à un usage de stockage ou à un véhicule de petit gabarit. Des travaux de modernisation sont à prévoir (menuiseries, chauffage, électricité), offrant l’opportunité de repensez les prestations selon vos envies et de révéler tout le potentiel de cette maison. La toiture a été révisée et réparée. Une maison au caractère affirmé, à l’emplacement recherché, offrant de belles perspectives d’évolution pour un projet réfléchi et personnalisé. Une propriété au fort potentiel, à la situation rare en centre-ville, qui saura séduire les acquéreurs!!! Une visite, un renseignement, contactez Mme Nathalie Erguy de l'agence Imozen. "Conformément à l'article L 561.5 du code monétaire et financier, une pièce d'identité vous sera demandé pour l'organisation d'une visite". Les informations sur les risques auxquels ce bien est exposé sont disponibles sur le site Géorisques : www.georisques.gouv.fr
Les Outils
Descriptif du bien
Prix du bien : 249 000 €
Ville : Brignoles
Type de biens : Maison
Code postal : 83170
Surface habitable (m²) : 174 m²
surface terrain : 327 m²
Nombre de chambre(s) : 4
Nombre de pièces : 5
Nombre de niveaux : 1
Nb de salle de bains : 1
Cuisine : SEPAREE
Terrasse : OUI
Murs mitoyens : 1
Nombre de garage : 1
Exposition : SUD
Année de construction : 1960
Copropriété : NON
Prix de vente honoraires TTC inclus : 249 000 €
Montant estimé des dépenses annuelles d'énergie pour un usage standard est compris entre 4 280 € et 5 830 € . Prix moyens des énergies indexés sur les années 2021, 2022 et 2023 (abonnements compris).
La ville de Brignoles (83170)
Nos autres produits
Afficher le comparateur
